空き家物件情報

No.198 上之保【売買物件】

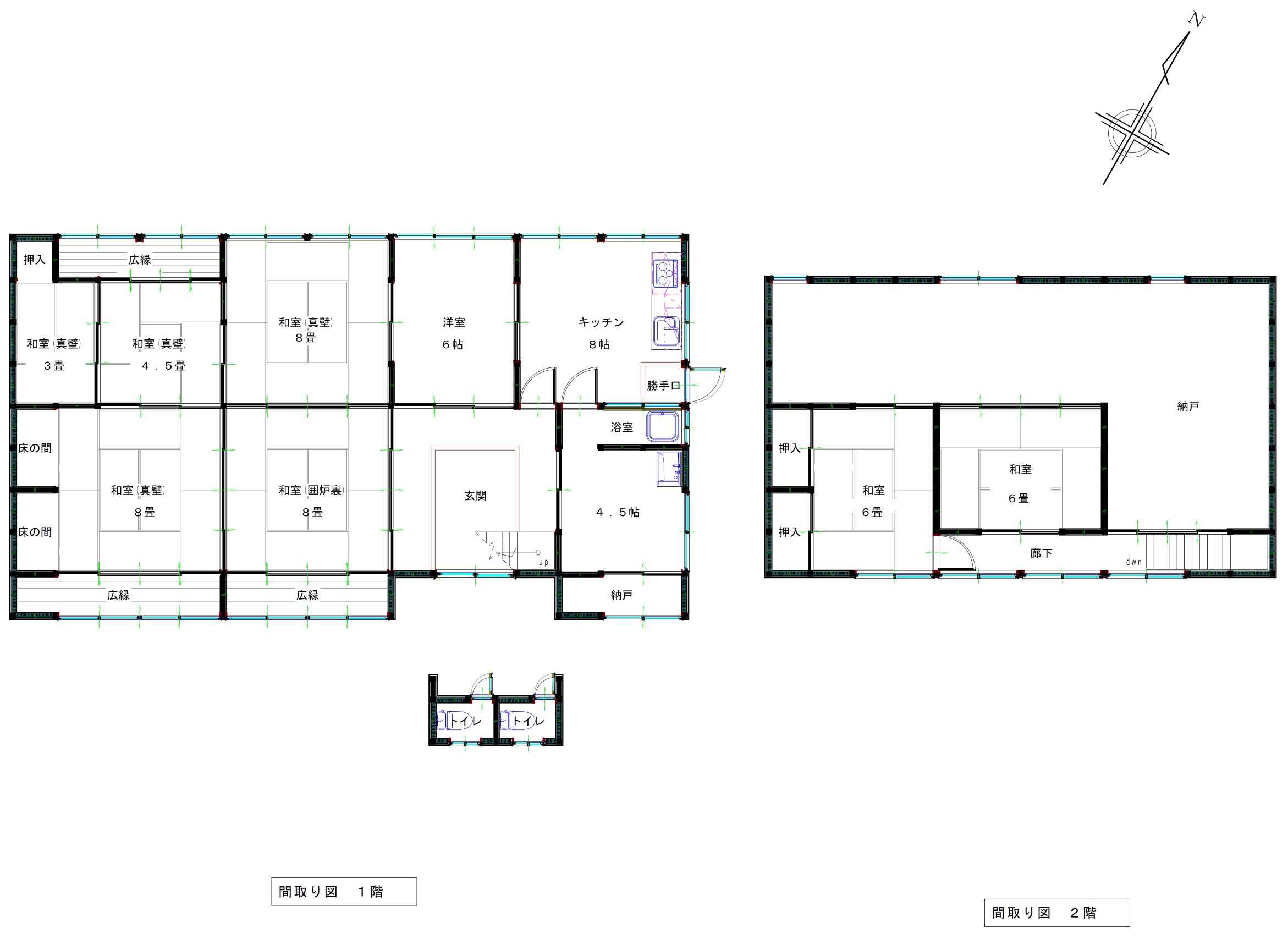
関市の中心地から50分ほど離れた自然豊かな上之保地域の物件です。広々とした和室が複数あり、大家族での居住はもちろん、多目的スペースとしても活用できます。トイレも洋式に改修済で、土蔵、山林、畑もあり、広々とした敷地でのんびりとした田舎暮らしを求める方に最適です。

台帳 物件台帳を見る(PDF)